Модульная компрессорная станция на базе двух контейнеров
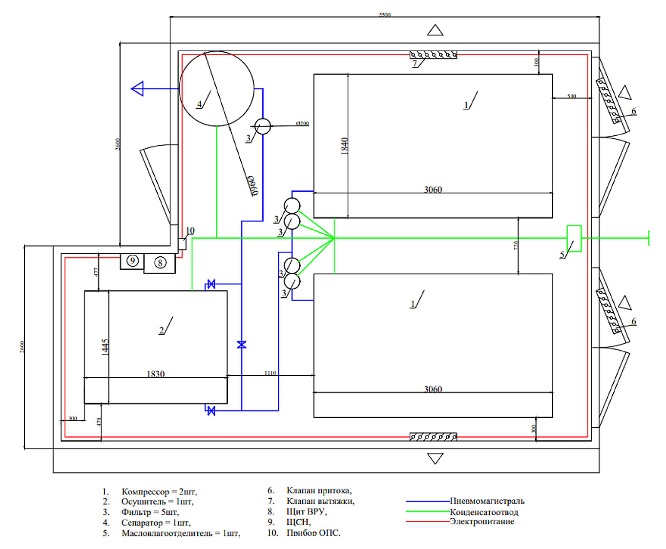
Изготовлена модульная компрессорная станция на базе двух блок-контейнеров ПБК 7 и 5,5 м для промышленного производства.
Установленное оборудование
- Винтовой компрессор Dali DL-160/10GA – 1 шт.
- Винтовой компрессор Dali DL-160/10GA-F – 1 шт.
- Адсорбционный осушитель горячей регенерации с воздуходувкой CAAD-27МР-D – 1 шт.
- Винтовой компрессор Dali DL-22/8RA-F – 1 шт.
- Осушитель адсорбционный горячей регенерации DLAD-6.5M – 1 шт.
- Фильтр циклонный CAZF-29 (14-29 м³/мин, 16 бар, 2") – 2 шт.
- Фильтр циклонный CAZF-3.6 (2.5-3.6 м³/мин, 16 бар, 3/4") – 2 шт.
- Фильтр магистральный CAF4-5-3/2 (1мкн, 1 мг/м³, 5 м³/мин 16 бар, 1-1/2") – 2 шт.
- Фильтр магистральный CAF3-5-3/2 (0,1мкн, 0,01 мг/м³, 5 м³/мин 16 бар, 1-1/2") – 2 шт.
- Фильтр магистральный CAF2-7-3/2 (0,01мкн, 0,001 мг/м³, 7 м³/мин 16 бар, 1-1/2") – 1 шт.
- Фильтр магистральный DLF5-28-3 (0.01мкн, 0.01 мг/м³, 28 м³/мин 16 бар, 3") – 2 шт.
- Фильтр магистральный DLF4-28-3 (0.01мкн, 0.001 мг/м³, 28 м³/мин 16 бар, 3") – 2 шт.
- Фильтр магистральный DLF2-37-3 (0.01мкн, 37 м³/мин 16 бар, 3") – 1 шт.
- Конденсатоотводчик поплавкового типа HAD20B – 5 шт.
- Маслосепаратор OWS 1275 – 1 шт.
Характеристики контейнеров
| Конструкция | |
| Вид контейнера | ПБК |
| Размер контейнера |
Контейнер №1: 7000х2600х3200 мм Контейнер №2: 5500х2600х3200 мм |
| Каркас | цельносварной из прокатного и гнутого стального профиля |
| Нижняя рама | из гнутых и катаных швеллеров |
| Днище | стальной лист 1 мм |
| Пол |
настил пола: стальной рифлёный лист 3 мм утеплитель: минватная плита 100 мм |
| Крыша |
тип: арочная покрытие: стальной лист 1,5 мм утеплитель: трёхслойная сэндвич-панель 100 мм |
| Стены | сэндвич-панель 100 мм |
| Дверь |
количество дверей: 1 шт. стальная, герметичная, с замком, утепленная, с доводчиком |
| Технологические ворота |
количество ворот: 2 шт. в торцевых стенах, для заноса/выноса технологического оборудования, утепленные, с запором |
| Окраска каркаса | RAL 5005 |
| Окраска блок-контейнера | RAL 9003 |
| Электрооборудование | |
| Тип сети | TN-C-S, единая электросеть (бытовая) |
| Электроразводка | наружная, в ПВХ кабель-каналах |
| Щит собственных нужд | есть |
| Розетки, выключатели | есть |
| Заземление | есть |
| Освещение |
основное: светодиодные светильники аварийное: аккумуляторные светодиодный светильники уличный светильник |
| Другие характеристики | |
| Отопление | электрическое; 5 электроконвекторов 1,5 кВт с терморегулятором |
| Вентиляция |
2 независимые системы принудительной приточно-вытяжной вентиляции. Каждая система включает в себя: вытяжную заслонку, приточную заслонку, заслонку рекуперации, вентиляционный короб. Снаружи на заслонки установлены жалюзийные решетки |
| Охранно-пожарная сигнализация | Гранит-3 |
| Модуль порошкового пожаротушения | Буран-2,5-2С, 7 шт. |
| Огнетушитель | ручной ОП-4, 1 шт. |
Характеристики компрессоров
- Производительность компрессора – 24500 л/мин (каждого).
- Максимальное давление – 10 атм.
- Мощность двигателя – 160 кВт.
|
Оформите заявку на сайте, мы свяжемся с вами в ближайшее время и ответим на все интересующие вопросы.
|
Заказать проект
|